"Western River" skala 1:25

W tym miejscu potykamy się o projektowanie modeli żaglowców - i te na kartce i te tworzone komputerowo
Awatar użytkownika
mirek
Posty: 1879
Rejestracja: 04 gru 2010, 21:55

Re: "Western River" skala 1:25

Post autor: mirek »

Jak tak będą robione rysunki to gwarantuję pełen sukces
Pozdrawiam Mirek Rybus
Awatar użytkownika
Wojtek-Sos
Posty: 159
Rejestracja: 28 lis 2012, 18:05

Re: "Western River" skala 1:25

Post autor: Wojtek-Sos »

Złożeniówka szkieletu kadłuba
Kadłub - szkielet.JPG
Pozdrawiam
Wojtek
sina2
Posty: 63
Rejestracja: 04 gru 2010, 21:56

Re: "Western River" skala 1:25

Post autor: sina2 »

jak mogę zasugerować, to na rzucie aksonometrycznym włącz kolor, rysunek staje się dużo bardziej czytelny gdy widać ściany nie tylko same krawędzie
Załączniki
1j.JPG
Awatar użytkownika
Wojtek-Sos
Posty: 159
Rejestracja: 28 lis 2012, 18:05

Re: "Western River" skala 1:25

Post autor: Wojtek-Sos »

Kadłub - szkielet 01.JPG

Masz rację, rysunek jest bardziej czytelny.
Pozdrawiam
Wojtek
Awatar użytkownika
Wojtek-Sos
Posty: 159
Rejestracja: 28 lis 2012, 18:05

Re: "Western River" skala 1:25

Post autor: Wojtek-Sos »

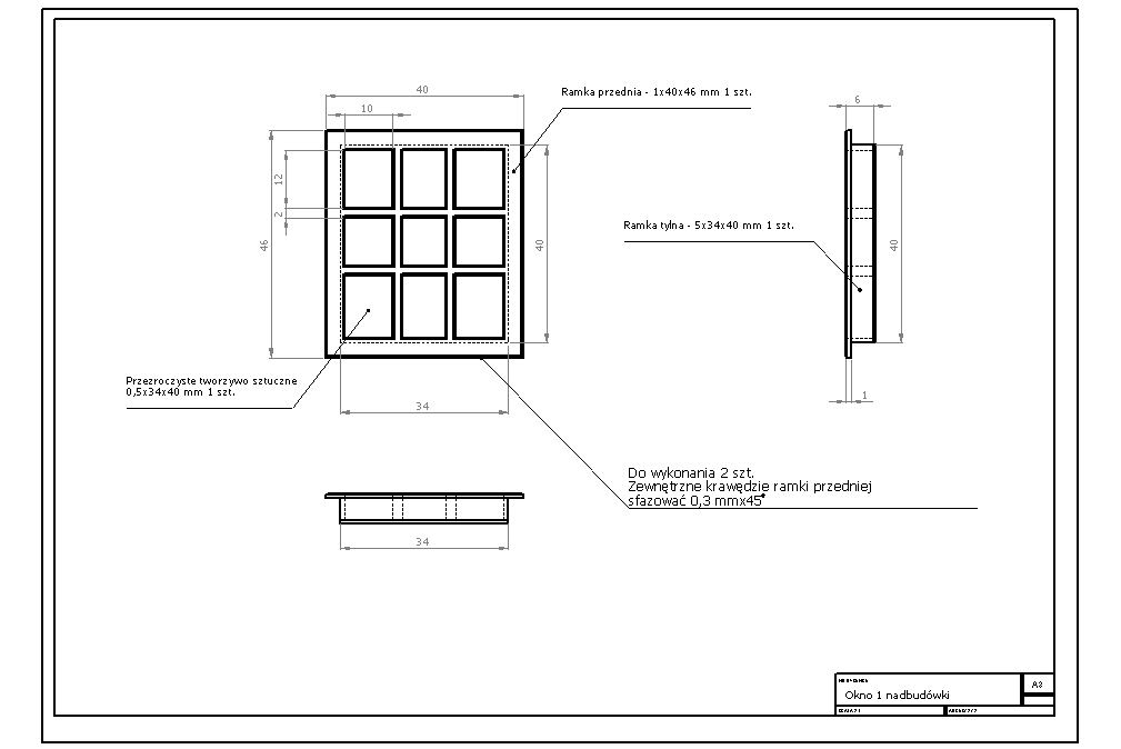
Przykłady rysunków wykonawczych:
Drzwi no1P1.JPG

okno.JPG
Pozdrawiam
Wojtek
Awatar użytkownika
mirek
Posty: 1879
Rejestracja: 04 gru 2010, 21:55

Re: "Western River" skala 1:25

Post autor: mirek »

Kapitalne są te rysunki , Wojtku wielki szacunek za włożony trud !!!!
Pozdrawiam Mirek Rybus
Awatar użytkownika
Andrzej1
Posty: 1568
Rejestracja: 04 gru 2010, 21:56
Lokalizacja: {"name":"Polska Szczecin","desc":"","lat":"","lng":""}

Re: "Western River" skala 1:25

Post autor: Andrzej1 »

Coś dziwnego, są wymiary, a mnie mówiono, że na planach modelarskich nie nanosi się
wymiarów. Pewnie Wojtek nie jest modelarzem i nie wiedział.
Uważam, że jest to R E W E L A C J A.

Z ukłonami
Andrzej Korycki
Awatar użytkownika
Wojtek-Sos
Posty: 159
Rejestracja: 28 lis 2012, 18:05

Re: "Western River" skala 1:25

Post autor: Wojtek-Sos »

Dzięki wszystkim za miłe słowa. Oby mi cierpliwości wystarczyło, bo roboty przy tym jest trochę.
Pozdrawiam
Wojtek
Awatar użytkownika
gdas
Posty: 57
Rejestracja: 04 gru 2010, 21:56

Re: "Western River" skala 1:25

Post autor: gdas »

Witam
a w jakim programie jest to projektowane , jeśli to nie tajemnica
Awatar użytkownika
Wojtek-Sos
Posty: 159
Rejestracja: 28 lis 2012, 18:05

Re: "Western River" skala 1:25

Post autor: Wojtek-Sos »

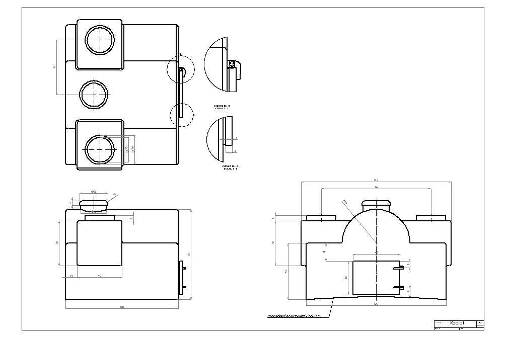
Rysunek wykonawczy kotła
Kocioł.JPG
Pozdrawiam
Wojtek
ODPOWIEDZ